2
$1,760,000 Sale
Listed 17 hours ago
PH 1268 W Broadway
· 3
· 3
· 2
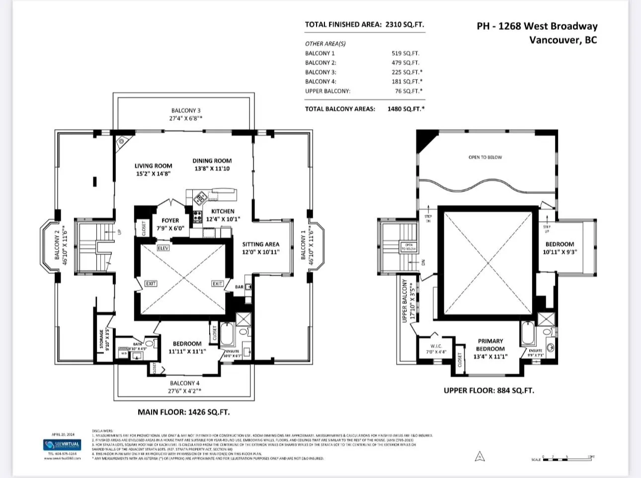
· 2310
Key Facts
Key facts for PH 1268 W Broadway
Property Type
Condo, Penthouse
Parking
2 parking
MLS #
R3054109
Size
2310 sqft
Basement
None
Listed on
-
Lot size
-
Tax
$7,427.73 /yr
Days on Market
-
Year Built
1992
Maintenance Fee
$1,850.73 /mo
Description
Welcome to "City Gardens" a concrete mid-rise in Vancouver’s Fairview neighborhood. This penthouse offers over 2,300 sq ft of living space and more than 1,400 sq ft of outdoor area, featuring breathtaking 360-degree views of False Creek, Downtown Vancouver, and the North Shore Mountains, creating a ...dynamic backdrop for relaxation and entertainment. The open-concept layout seamlessly integrates the 18-foot vaulted ceilings of living, dining, and family rooms, fostering an inviting gathering atmosphere. A private elevator for direct access. Situated just two blocks from South Granville's vibrant shopping and dining district, and within walking distance to Granville Island, this location offers unparalleled convenience.
Similar Properties (No results)
Room Types
Living Room
-
Dimensions 14'8 x 15'2
222.44 sqft
Dining Room
-
Dimensions 11'10 x 13'8
161.72 sqft
Kitchen
-
Dimensions 10'10 x 12'4
133.61 sqft
Courtesy of: Nu Stream Realty Inc.